湧別町で移住体験してみませんか!?
湧別町で、ちょっと暮らし
北海道への移住に関心のある方に、1週間から3カ月以内の期間で、実際に湧別町での暮らしを体験していただき、湧別町の魅力や生活環境を知っていただくため、家具や電化製品をそろえた移住体験住宅をご用意しています。
体験住宅の利用申し込み
令和4年度における利用申し込みについて
令和4年度の利用申し込みを次のとおり受け付けています。
※必ず移住体験実施要綱および留意点をご確認のうえ申し込み願います。また、申し込みは先着順となっておりご希望に添えない場合がございますのでご了承願います。
募集概要
- 受付開始日:令和4年4月11日(月曜日)
- 対象期間:令和4年5月2日(月曜日)~令和5年3月31日(金曜日)
- 申込方法:電話にて事前に住宅の空室状況をご確認のうえ、利用が可能である場合は、所定の様式等の提出をしていただきます。
利用の申し込みにあたりご留意いただく点
利用申請書類
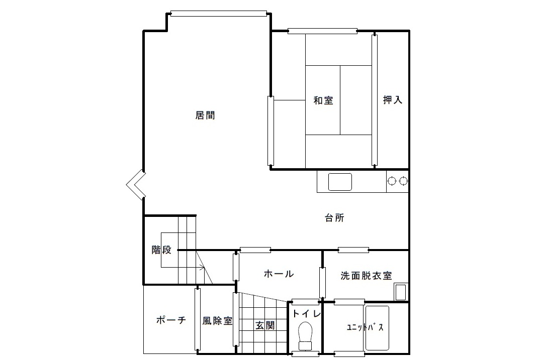
移住体験住宅の施設概要
栄町体験住宅
| 所在地 | 北海道紋別郡湧別町栄町142番地7 |
|---|---|
| 棟数 | 2棟 |
| 間取等 | 茶の間8畳、和室6畳、和室4畳半×2、台所、ユニットバス、水洗トイレ 総床面積58平方メートル |
| 建築年 | 昭和50年築 |
| 設備等 | テレビ、冷蔵庫、炊飯器、洗濯機、食器類、暖房機器、ガス台、電子レンジ、ホットプレート、掃除機、アイロン、電気ポット、給湯ボイラー、なべ等の調理器具、食器 |
| 利用期間 | 1週間~3カ月以内 |
※寝具は備え付けておりません。(利用者で用意いただくか、貸布団のご利用が可能です。)
※インターネットは、固定回線及びWIFIのどちらでも利用が可能です。
※電話は備え付けていません。
※備付以外の日常生活に必要な消耗品等(補充を含む)は利用者でご用意願います。
※ペットの同伴は禁止としていますのでご遠慮願います。(身体障がい者補助犬法による介助犬、盲導犬、聴導犬は除外します。)
中湧別南町体験住宅
| 所在地 | 北海道紋別郡湧別町中湧別南町965番地18 |
|---|---|
| 棟数 | 1棟 |
| 間取等 | 茶の間11畳、和室6畳×2、洋室6畳、台所、ユニットバス、水洗トイレ、総面積84平方メートル |
| 建築年 | 昭和60年築 |
| 設備等 | テレビ、冷蔵庫、炊飯器、洗濯機、食器類、暖房機器、ガス台、電子レンジ、ホットプレート、掃除機、アイロン、電気ポット、給湯ボイラー、鍋等の調理器具、食器 |
| 利用期間 | 1週間~3カ月以内 |
※寝具は備え付けておりません。(利用者で用意いただくか、貸布団のご利用が可能です。)
※インターネットは、WIFIのみ利用可能となります。
※電話は備え付けていません。
※備付以外の日常生活に必要な消耗品等(補充を含む)は利用者でご用意願います。
※ペットの同伴は禁止としていますのでご遠慮願います。(身体障がい者補助犬法による介助犬、盲導犬、聴導犬は除外します。)
利用料金
料金は、契約期間中の暦月毎に計算します。ただし、利用期間に1カ月未満の端数がある場合は、1カ月を30日とした日割り計算とします。
| 区分 | 期間 | 金額 |
|---|---|---|
| 夏期(5月~10月) | 1カ月 | 45,000円 |
| 冬期(11月~4月) | 1カ月 | 60,000円 |
ちょっと暮らしを体験した方の感想
夏の過ごしやすさと雄大な自然が評価されています!
平成25年より取り組みを開始した湧別町「移住体験」は、オホーツクの涼しい気候とオホーツク海やサロマ湖から獲れる新鮮な魚介類が好評で7月~9月は毎年ほぼ満室になり、シーズンステイの候補地として高い人気を博しています。
アンケート結果まとめ
移住体験した方々のアンケートより感想を掲載させていただきます。滞在中の過ごし方の参考にしてください。
移住体験をしてみて…
- 海に近く、サロマ湖や原生花園もあり、見どころがたくさんあった。
- 高い建物がないので空が大きく感じた。
- 生のホタテを買って、初めて捌いて食べるという経験ができた。
- 山と海があり変化に富んだ生活が送れそうな町だと思った。
- 浜の展望台から見えた知床連山から昇る日の出に感動した。
- 町全体が清潔で静かな環境なので暮らしやすさを感じた。
- 一言でいえば“広い”。車での移動が楽で、静かな環境が良い。
湧別町の紹介
移住関連サイト
お問い合わせ先
企画財政課未来づくりグループ(上湧別庁舎)電話01586-2-5862
次のメールフォームからもお問い合わせいただけます。







